tel0197-51-1739 見学会予約 お問い合わせ 資料請求
tel0197-51-1739

建売・不動産情報

estate
TOP > 建売・不動産情報 > 岩手県奥州市水沢字高屋敷の中古住宅

中古住宅

岩手県奥州市水沢字高屋敷の中古住宅

価格 3,150万円 土地面積 209.57㎡ 63.39坪
  • image1
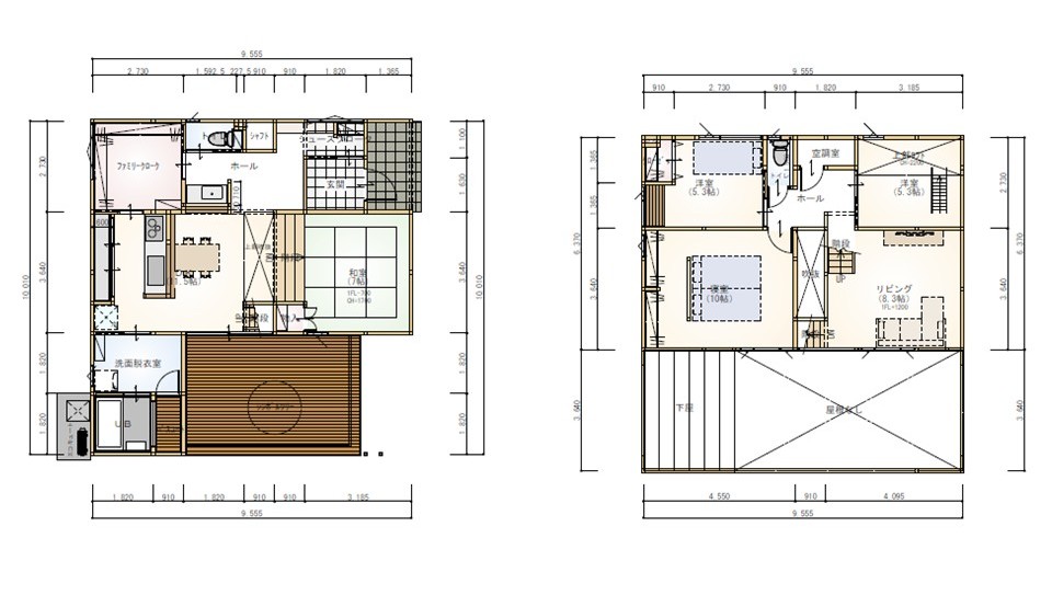
  • 水沢字高屋敷86-3 平面図
  • image2
  • image12
  • image16
  • image34
  • 編集済み
  • image1
  • 水沢字高屋敷86-3 平面図
  • image2
  • image12
  • image16
  • image34
  • 編集済み

【水沢小学校エリア】展示場仕様の5LDK高性能住宅!全館空調で一年中どの部屋も快適に!
全館空調で一年中快適な住環境。モデルハウスとして建築されたこだわりの住まいです!
5LDK・延床面積|122.96㎡ 約37坪のゆとりある間取りで、収納スペースも充実。
水沢小学校エリア内、生活利便性の高いロケーションです。
築年月:2019年9月

※現在居住中のため、内見は事前予約制となります。
ご希望日時をいくつかお知らせください。日程調整のうえご案内いたします。
仲介手数料:売買価格の3%+6万円+消費税

物件概要

所在地
岩手県奥州市水沢字高屋敷
価格
3,150万円
土地面積
209.57㎡ 63.39坪
交通
JR東北本線 水沢駅から徒歩24分
校区
水沢小学校区
地目
宅地
都市計画
区域内 非線引き
用途地域
第二種住居
建蔽率・容積率
上水道
あり
下水道
あり
接道
東6.0m 公道 接面13.5m 位置指定あり
環境
クスリのアオキ水沢店から143m
取引態様
媒介
引渡
相談
建築条件

物件マップ



建売・不動産お問い合わせフォーム

建売・不動産のお問い合わせはこちらのフォーム、もしくはお電話にてお問い合わせください。
こちらのメールフォームより申し込み後、弊社担当者よりご連絡をさせて頂きます。
※ 迷惑メール対策のフィルター等の設定をされている方は @smive1739.com をセーフリストに追加してください。

  • 情報入力
  • 内容確認
  • 送信完了
必須ご希望の項目を選択してください

※ 聞きたいことをご記入ください。

 

必須お名前
必須フリガナ
必須郵便番号Japan
-
必須住所
必須電話番号
- -
必須メールアドレス
必須プライバシーポリシーについて

>プライバシーポリシーはこちらをご覧ください。

 

 

«
»

お問い合わせ・資料請求

お問い合わせ・資料請求受け付けております。

メールでの資料請求はこちら
メールでのお問い合わせはこちら