tel0197-51-1739 見学会予約 お問い合わせ 資料請求
tel0197-51-1739

建売・不動産情報

estate
TOP > 建売・不動産情報 > 岩手県奥州市水沢花園町二丁目の売建て住宅

売建て

岩手県奥州市水沢花園町二丁目の売建て住宅

価格 2,610万円 土地面積 219㎡ 66.25坪
  • 花園町 夜外観パース
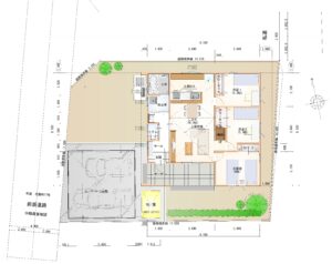
  • 配置図2
  • 60-1
  • 花園町 夜外観パース
  • 配置図2
  • 60-1

常盤小学校まで徒歩2分

□平屋・3LDK・建物面積|72.78㎡ 約22坪
□土地+建物・・・2,610万円
土地仲介手数:33万円(税込)

■□■周辺環境■□■
・常盤小学校:徒歩6分
・東水沢中学校:徒歩18分
・クスリのアオキ東中通り店:徒歩11分
◆◇見どころポイント◇◆
・設備 : 断熱ペアガラスサッシ・システムキッチン・1坪ユニットバス・洗面化粧台・シャワートイレ・照明器具一式・網戸一式・24時間換気システム・TVアンテナ・シューズボックス・TVドアホン →フルセットでこの価格!
※建築前なら外観、フロア、キッチン、洗面台、トイレ、建具、壁紙を自分好みにカスタマイズできます!
建築確認番号 第R07-1-0093-0号令和7年5月1日
■電気/東北電力
■ガス/プロパン個別
■備考/現状渡し(古家あり)・解体費用は買主負担

物件概要

所在地
岩手県奥州市水沢花園町2丁目
価格
2,610万円
土地面積
219㎡ 66.25坪
交通
バス停-花園集会所前から徒歩2分
校区
常盤小学校
地目
宅地
都市計画
区域内 非線引き
用途地域
第一種中高層
建蔽率・容積率
60%・200%
上水道
あり
下水道
あり
接道
西側市道 幅員4m
環境
常盤小学校から約100m
取引態様
媒介
引渡
即可
建築条件
なし

物件マップ



建売・不動産お問い合わせフォーム

建売・不動産のお問い合わせはこちらのフォーム、もしくはお電話にてお問い合わせください。
こちらのメールフォームより申し込み後、弊社担当者よりご連絡をさせて頂きます。
※ 迷惑メール対策のフィルター等の設定をされている方は @smive1739.com をセーフリストに追加してください。

  • 情報入力
  • 内容確認
  • 送信完了
必須ご希望の項目を選択してください

※ 聞きたいことをご記入ください。

 

必須お名前
必須フリガナ
必須郵便番号Japan
-
必須住所
必須電話番号
- -
必須メールアドレス
必須プライバシーポリシーについて

>プライバシーポリシーはこちらをご覧ください。

 

 

«
»

お問い合わせ・資料請求

お問い合わせ・資料請求受け付けております。

メールでの資料請求はこちら
メールでのお問い合わせはこちら